Bilocale in vendita

Sondalo, Via Adda
€ 215.000
2 locali 2 locali
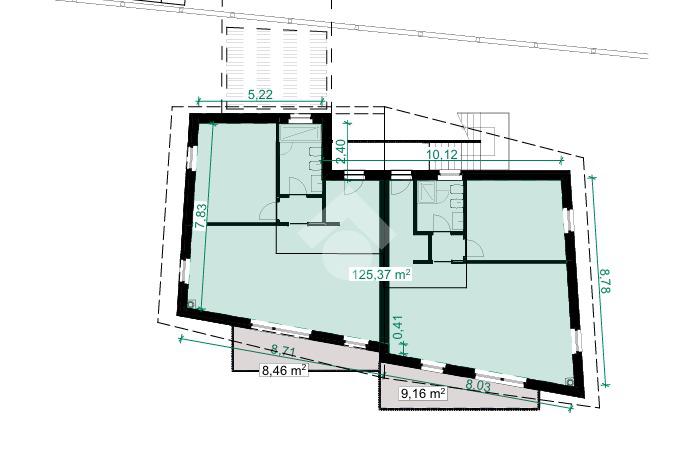
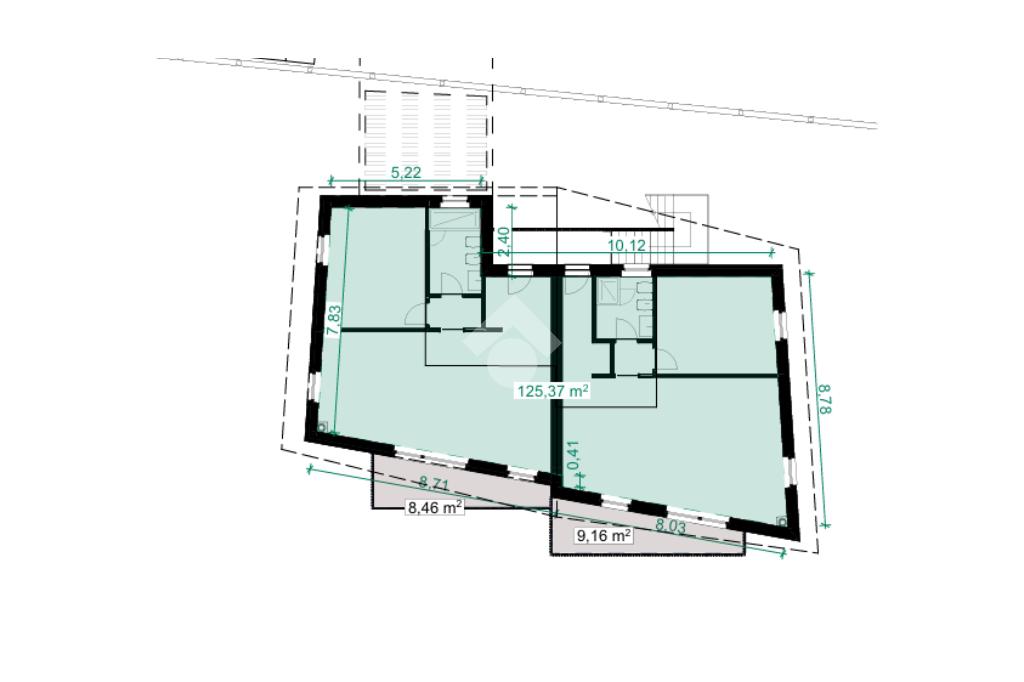
104 Mq 104 Mq
1 bagno 1 bagno

Bilocale in vendita

Sondalo, Via Adda

Descrizione annuncio

VIA ADDA - SONDALO

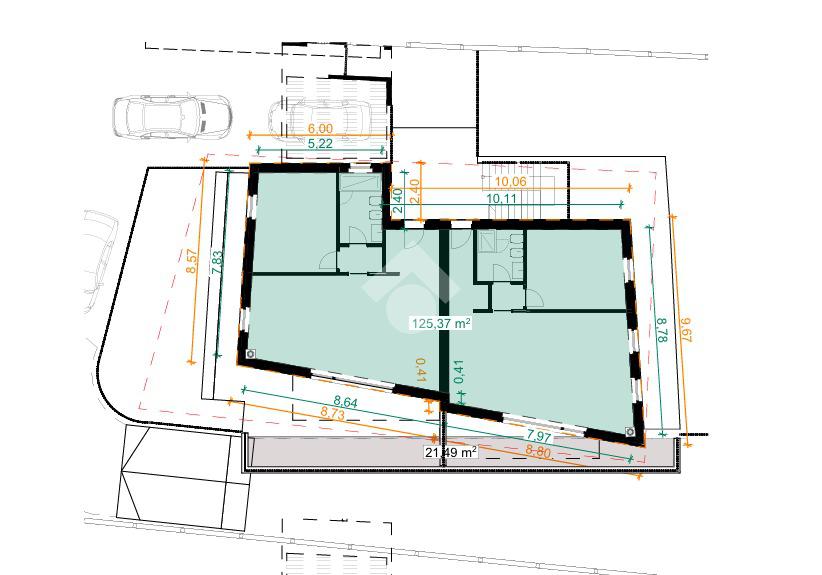
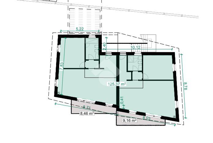
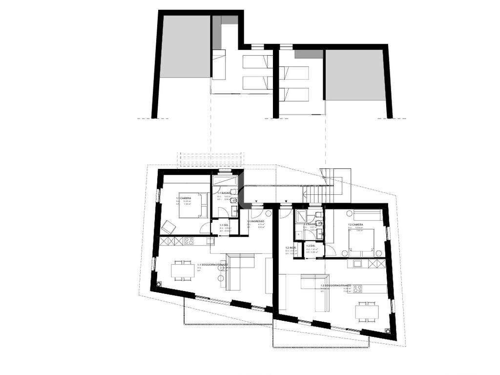
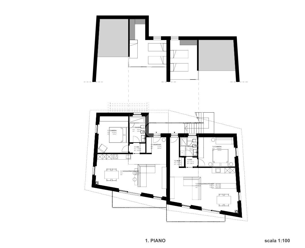
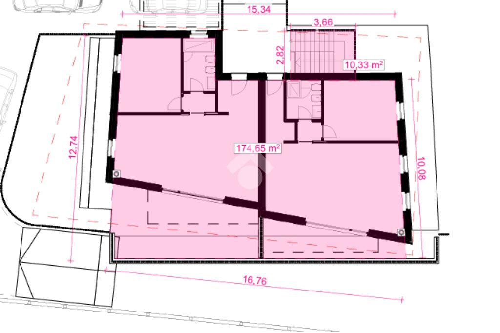
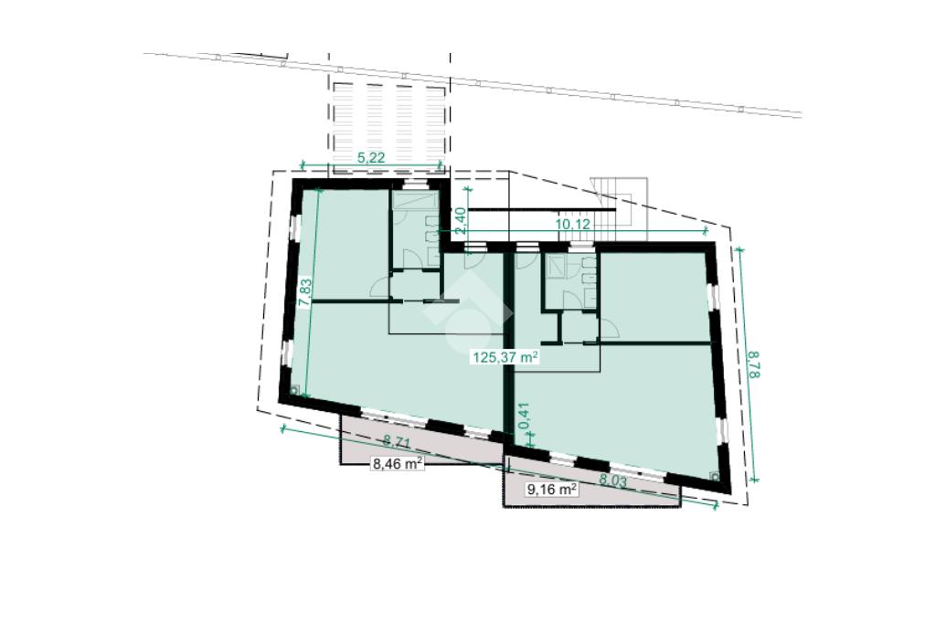
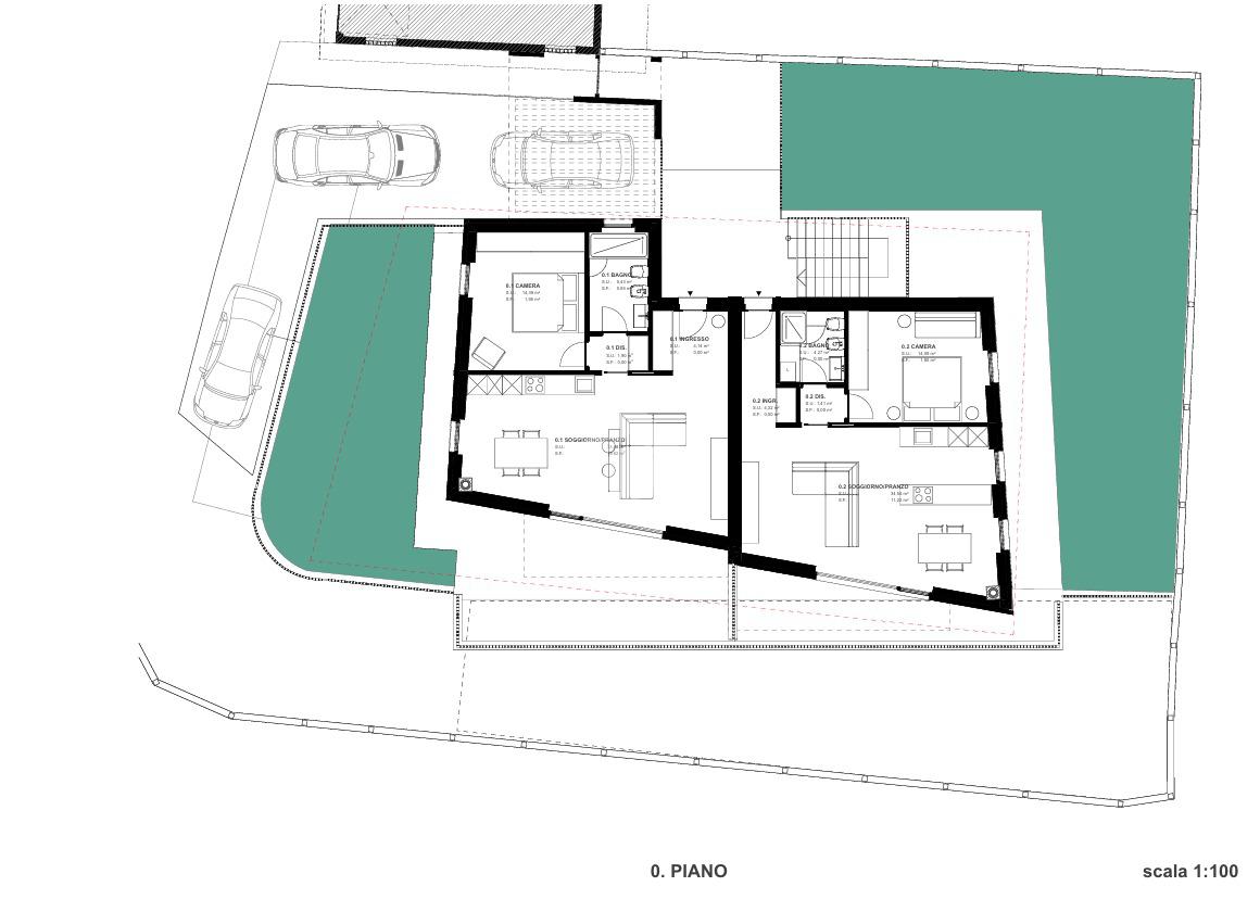
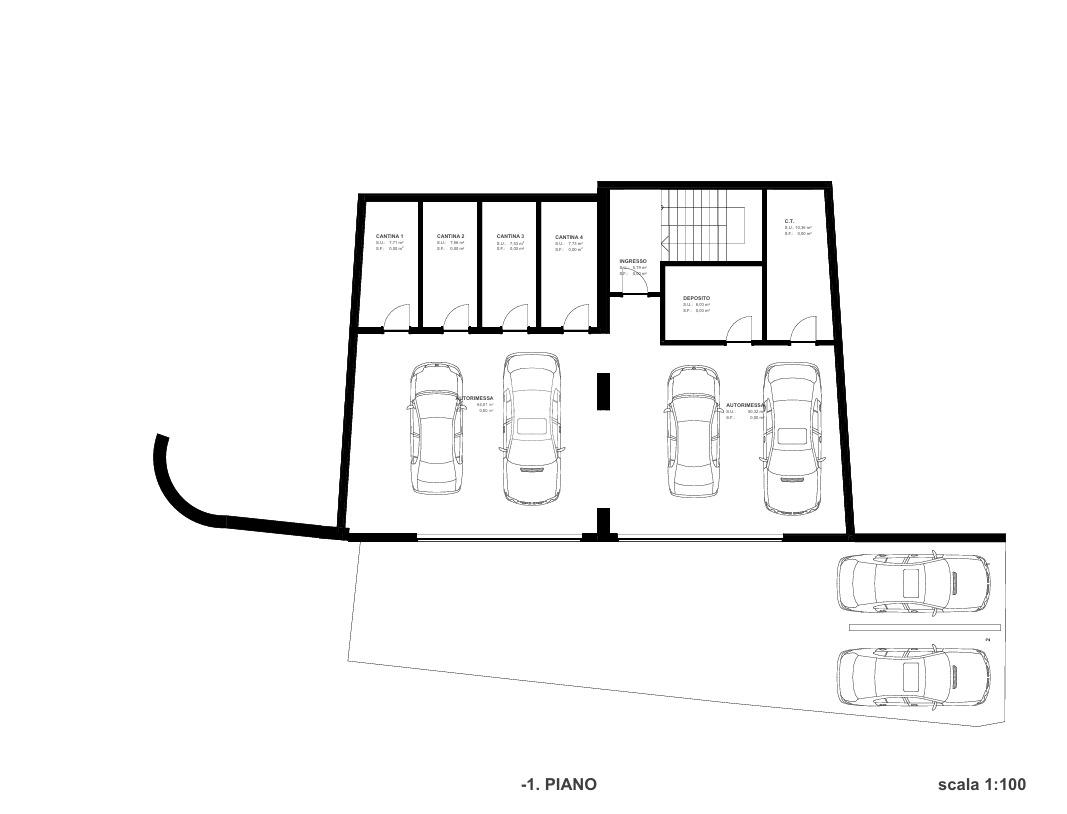
Il complesso residenziale sorgerà in via Adda, in una posizione ben soleggiata e vicina a tutti i servizi, a pochi passi dal centro di Sondalo e a 15 minuti da Bormio e Tirano. Questa nuova costruzione ospiterà 4 unità abitative, di cui due trilocali e due bilocali, ciascuna dotata di autorimessa singola, posto auto esterno e cantina e tutti con accesso indipendente.
Una soluzione perfetta per chi cerca un immobile moderno con tutti i comfort contemporanei, caratterizzato da un design moderno e realizzato con elevati standard qualitativi.


Dal punto di vista energetico, tutti gli immobili vanteranno Classe A4, garantendo così un elevato comfort abitativo ed un significativo risparmio sui consumi.

Gli appartamenti verranno consegnati finiti e chiavi in mano, secondo le specifiche del capitolato di vendita che potranno essere scelte direttamente dall'acquirente. Le soluzioni possono subire modifiche in corso d'opera a seconda delle esigenze dell'acquirente. La consegna prevista è per la primavera del 2027. PER MAGGIORI INFORMAZIONI SULLE TIPOLOGIE DISPONIBILI CONTATTATECI
Mostra tutto

Nelle vicinanze

Ospedali Ospedali
Ospedale Eugenio Morelli
780 m
Supermercati Supermercati
Iperal
290 m
Bar Bar
Bar
370 m
Mostra tutto

Caratteristiche

Rif.:
61176048
Piano:
Terra con giardino di 2
Totale piani:
2
Box:
1
Posti auto:
2
Terrazzi:
1
Mostra tutto
Prezzo Prezzo
€ 215.000
Rata mutuo Rata mutuo
€ 1.026 / mese
Spese annue Spese annue
€ 0
Proponi il tuo prezzoProponi il tuo prezzo

Classe Energetica

Questo immobile è esente da classe energetica
Anno di costruzione:
2026
Riscaldamento:
Autonomo
Tipo impianto:
A pavimento
Tipo alimentazione:
Altro

Ti interessa visionare l'immobile?

Fissa un appuntamento  Fissa un appuntamento

Richiedi informazioni

Clicca su Leggi per aprire l'informativa
* Questi campi sono obbligatori

Calcola il tuo mutuo

Semplice e senza impegno
Anticipo

( % )
Mutuo

( % )

pochi semplici passi

inserisci i tuoi dati
Questionario completato
Grazie per aver richiesto un appuntamento senza impegno con un nostro Consulente del Credito e Assicurativo.

Hai inserito correttamente tutti i dati necessari e a breve riceverai una e-mail con un link da convalidare per inviare i tuoi dati.
Affiliato
Tecnobormio Srl
Via San Vitale, 18 23032 Bormio (SO)

Il nostro staff


  • Lisa Crimi
    Coordinatrice

  • Alessia Della Vedova
    Affiliata
Via San Vitale, 18 23032 Bormio (SO)
Zona: Bormio
Mostra su mappa
Orari: Lun-Ven dalle 9.00 alle 12,30 e dalle 14.30 alle 19.00, weekend su appuntamento
Affiliato
Tecnobormio Srl
Via San Vitale, 18 23032 Bormio (SO)

2026 Tecnocasa Franchising S.p.A. - P. IVA 08365160152 - Via Monte Bianco 60/A 20089 Rozzano (MI). Ogni agenzia ha un proprio titolare ed è autonoma. Privacy policy | Policy utilizzo | Cookie policy